Дом из газобетона с террасой 12х12 (Проект Звездочка)
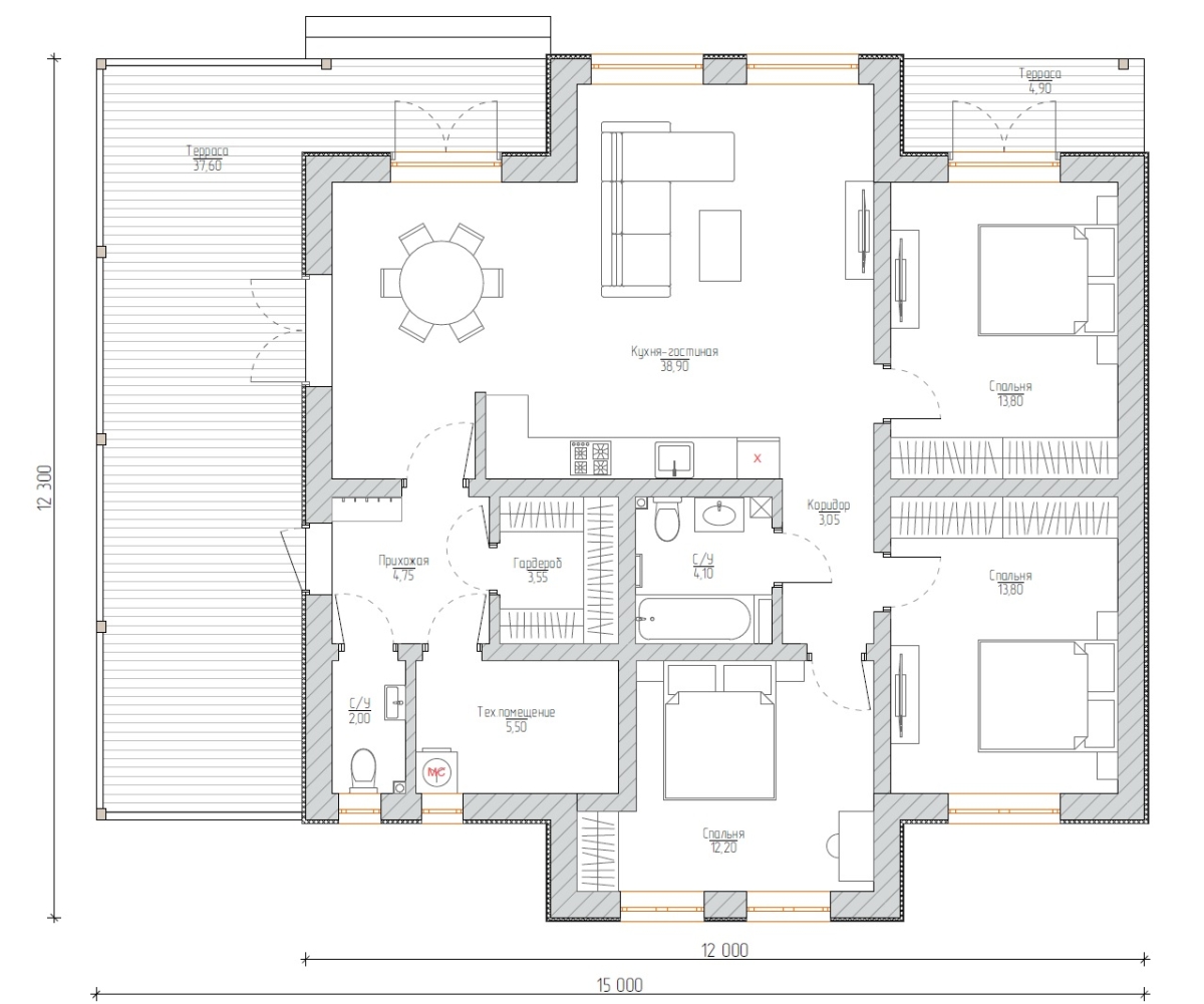
Планировка
Характеристики проекта
Описание
Проект одноэтажного дома «Звездочка» выполнен из современных материалов с применением деревянных и стеклянных элементов, что придает ему стильный и уютный вид. Архитектурный стиль сочетает в себе элементы скандинавского и современного дизайна, а большие панорамные окна наполняют дом естественным светом.
Площадь дома составляет 144 м², из которых 101 м² — жилое пространство. Высокие потолки (от 2,75 до 4,7 м) создают ощущение простора. Планировка включает три спальни, просторную кухню-гостиную, два санузла, гардеробную и техническое помещение. Дополнительно предусмотрены две уютные террасы для отдыха на свежем воздухе.
Этот проект идеально подойдет для семьи с детьми или для тех, кто ценит комфорт загородной жизни. Просторные помещения и функциональная планировка делают дом удобным как для постоянного проживания, так и для загородного отдыха.
для строительства!
Наш специалист поможет подобрать проект и детально обсудить все тонкости процесса строительства.






















