Дом из газобетона 8х14 (Проект Лужайка)
Планировка
Характеристики проекта
Описание
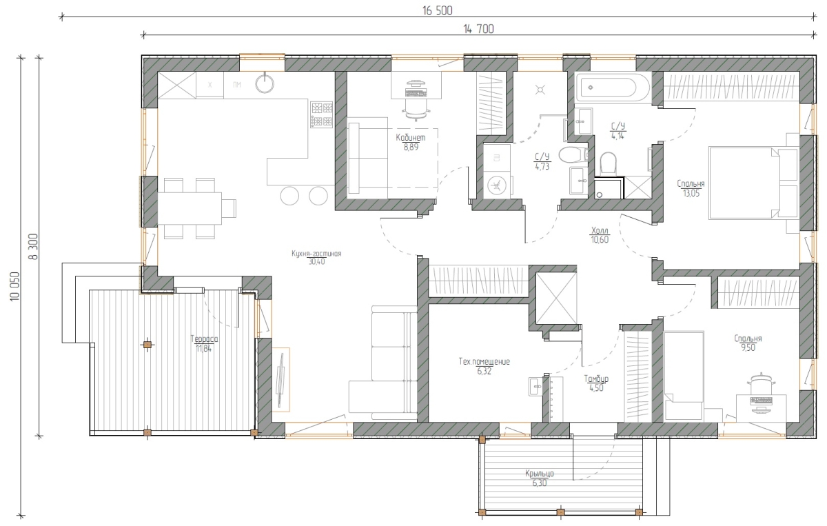
Проект Лужайка представляет собой уютный одноэтажный дом из газобетона с продуманной планировкой и просторными помещениями. Общая площадь составляет 112 квадратных метров, а площадь помещений – 92 квадратных метра, что обеспечивает комфортное проживание для семьи.
Дом включает три спальни, что делает его удобным для семей с детьми или для гостей. В проекте предусмотрены два санузла, что значительно повышает удобство эксплуатации.
Кухня-гостиная становится центром семейного отдыха и приема гостей. Для хранения предусмотрено техническое помещение площадью 6,3 м². Также есть кабинет, который можно использовать как рабочее пространство или дополнительную комнату.
Приятным дополнением к дому является просторная терраса площадью 11,8 м², где можно организовать зону отдыха на свежем воздухе. Вход в дом украшен крытым крыльцом, защищающим от осадков.
Этот проект – идеальное решение для тех, кто ценит комфорт, функциональность и современные строительные технологии.
для строительства!
Наш специалист поможет подобрать проект и детально обсудить все тонкости процесса строительства.





















