Одноэтажный дом из газобетона 12х18 Агалатово
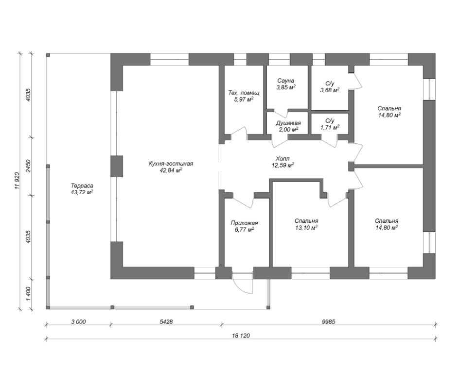
Планировка
Характеристики проекта
Кол-во с/у
2
Особенности
с террасой
По материалу
Дома из газобетона
Общая площадь
203 кв. м.
Площадь помещений
165 кв. м.
Этажность
1 этаж
Высота потолков 1-го этажа
3 м
Общее кол-во спален
3
Сауна
Да
Терраса
Да
Общее кол-во сан. узлов
2
Подписывайтесь на наш телеграм-канал
Описание
Высота дома 6.14 м
Высота потолков 3 м
Архитектурный стиль Классический
Материал наружных стен и несущих конструкций Газобетонные блоки
Толщина наружных стен 300 мм
Тип фундамента Плитный
Материал перекрытий Деревянные
Основной материал фасадов Облицовочный кирпич
Тип кровли Двускатная
Материал кровли Металлочерепица
Материал внутренних перегородок Газобетон
Одноэтажный дом из газобетона 12х18 Агалатово
Площадь203 м²
Этажность1
Спален3
Цена: по запросу
В избранное
Предлагаем максимально выгодные условия
для строительства!
для строительства!
Получите льготное предложение на строительство своего дома под 5,7% годовых.
Доступна сельская ипотека под 3% годовых.Узнайте больше о возможностях строительства по ставке ниже инфляции.Поможем оформить и бесплатно проконсультируем.
5,7%
Льготная программа для семей с детьми от Сбербанка
3,0%
Льготная программа по сельской ипотеке от россельхоз банка
Посетите наш выставочный дом в Озерках
Наш специалист поможет подобрать проект и детально обсудить все тонкости процесса строительства.




















