Дом из бруса в пос.Шапки
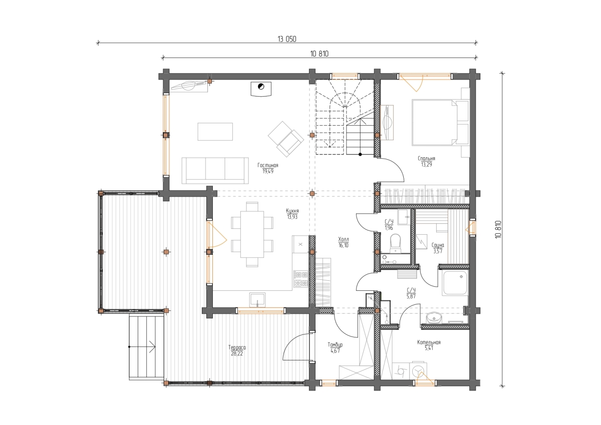
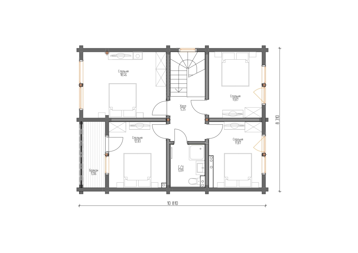
Планировка
Характеристики проекта
Объекты по данному проекту:
Описание
Этот дом поистине для большой семьи - 4 спальни, огромная кухня-гостиная, да еще и сауна! Он точно станет местом, где захочется остаться!
Фундамент дома тоже интересный - монолитная ж/б плита с ростверком на ней и винтовыми сваями под террасой.
Дом строили из бруса толщиной брус 210х140 мм, несущие конструкции кровли - стропильная система со сдвоенными стропилами, в качестве покрытия крыши - металлочерепица толщиной 0,5 мм. Тип угловых соединений - в чашу со шпонками, уплотнитель в чаши - джут Экотерм.
Была проведена дезинфекция стен дома, стены покрыты в 1 слой антисептирующей грунтовкой и покрашены в 2 слоя краской.
Окна - rehau Делайт.
Этот проект был построен в 2025 году, стоимостью 12 862 000₽.
Актуальную стоимость этого дома сегодня, уточняйте у нашего менеджера.
- Заказать подобный дом вы можете связавшись с нами по телефонам, указанными в разделе контакты. либо заполнить форму внизу данной страницы.
- Чтобы посмотреть остальные дома, построенные нашей компанией, нужно перейти в раздел: нами построено.
для строительства!
Наш специалист поможет подобрать проект и детально обсудить все тонкости процесса строительства.






















