Брусовой дом в Горной Шальдихе 2
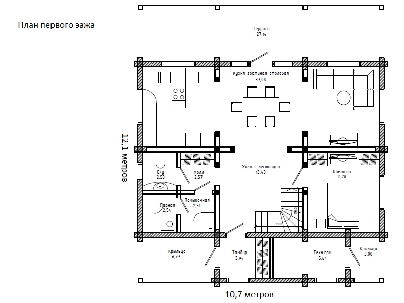
Планировка
Характеристики проекта
Кол-во с/у
2
Общая площадь
192 кв. м.
Площадь помещений
170 кв. м.
Этажность
1,5 этажа
Высота потолков 1-го этажа
2,60 м.
Высота потолков мансарды
2,50 м.
Спальня на 1м этаже
Да
Общее кол-во спален
5
Высота подстенков 1,5го этажа
1,50 м.
Сауна
Да
Второй свет
Да
Терраса
Да
Общее кол-во сан. узлов
2
Подписывайтесь на наш телеграм-канал
Брусовой дом в Горной Шальдихе 2
Площадь192 м²
Этажность1,5
Спален5
Цена: по запросу
В избранное
Предлагаем максимально выгодные условия
для строительства!
для строительства!
Получите льготное предложение на строительство своего дома под 5,7% годовых.
Доступна сельская ипотека под 3% годовых.Узнайте больше о возможностях строительства по ставке ниже инфляции.Поможем оформить и бесплатно проконсультируем.
5,7%
Льготная программа для семей с детьми от Сбербанка
3,0%
Льготная программа по сельской ипотеке от россельхоз банка
Посетите наш выставочный дом в Озерках
Наш специалист поможет подобрать проект и детально обсудить все тонкости процесса строительства.
























