Дом в деревне Гостилицы
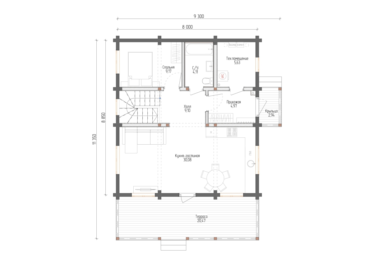
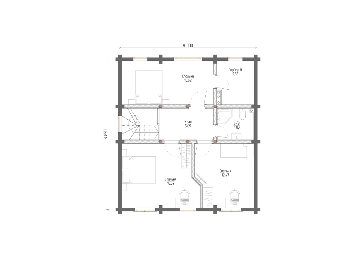
Планировка
Характеристики проекта
Кол-во с/у
2
Особенности
с террасой, со спальней на 1 этаже
По материалу
Дома из бруса
Общая площадь
144 кв. м.
Площадь помещений
141 кв. м.
Этажность
2 этажа
Высота потолков 1-го этажа
2,6
Спальня на 1м этаже
Да
Общее кол-во спален
4
Высота потолков 2-го этажа
1,9
Терраса
Да
Общее кол-во сан. узлов
2
Подписывайтесь на наш телеграм-канал
Дом в деревне Гостилицы
Ленинградская область
Площадь144 м²
Этажность2
Спален4
Цена: по запросу
В избранное
Предлагаем максимально выгодные условия
для строительства!
для строительства!
Получите льготное предложение на строительство своего дома под 5,7% годовых.
Доступна сельская ипотека под 3% годовых.Узнайте больше о возможностях строительства по ставке ниже инфляции.Поможем оформить и бесплатно проконсультируем.
5,7%
Льготная программа для семей с детьми от Сбербанка
3,0%
Льготная программа по сельской ипотеке от россельхоз банка
Посетите наш выставочный дом в Озерках
Наш специалист поможет подобрать проект и детально обсудить все тонкости процесса строительства.


















