Дом в деревне Корпикюля
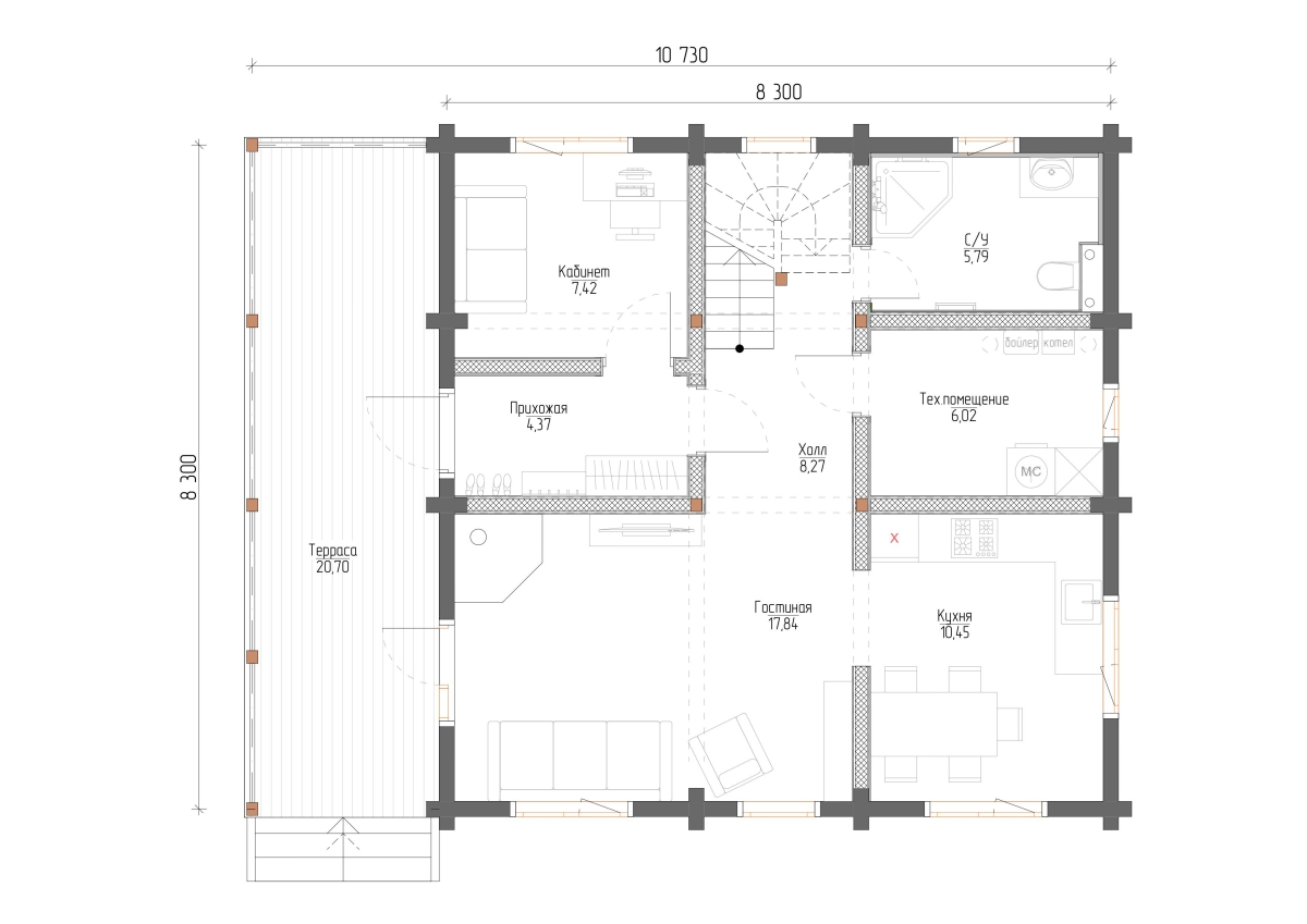
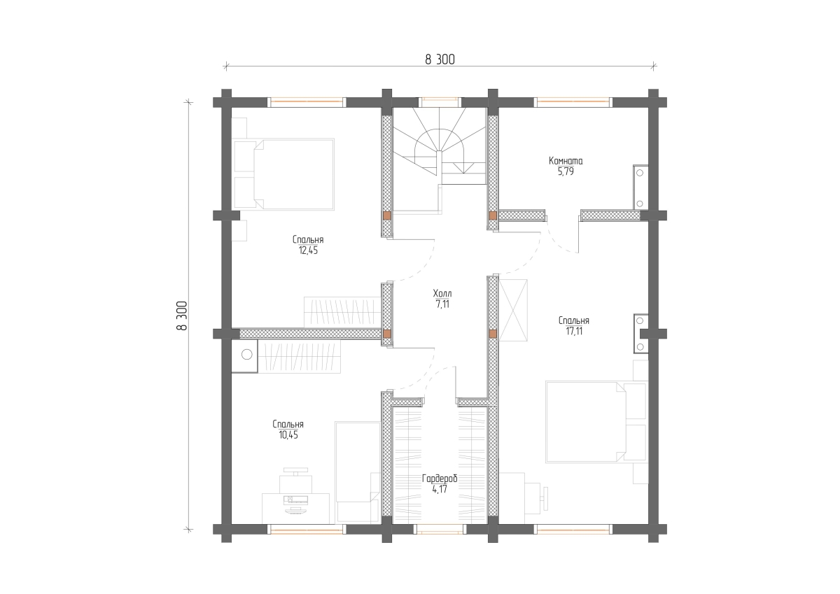
Планировка
Характеристики проекта
Кол-во с/у
1
Особенности
с террасой
По материалу
Дома из бруса
Общая площадь
140 кв. м.
Площадь помещений
138 кв. м.
Этажность
1 этаж + мансарда
Высота потолков 1-го этажа
2,5
Высота потолков мансарды
2,4
Общее кол-во спален
4
Высота подстенков 1,5го этажа
1,5
Терраса
Да
Общее кол-во сан. узлов
1
Подписывайтесь на наш телеграм-канал
Дом в деревне Корпикюля
Ленинградская область
Площадь140 м²
Этажность1,5
Спален4
Цена: по запросу
В избранное
Предлагаем максимально выгодные условия
для строительства!
для строительства!
Получите льготное предложение на строительство своего дома под 5,7% годовых.
Доступна сельская ипотека под 3% годовых.Узнайте больше о возможностях строительства по ставке ниже инфляции.Поможем оформить и бесплатно проконсультируем.
5,7%
Льготная программа для семей с детьми от Сбербанка
3,0%
Льготная программа по сельской ипотеке от россельхоз банка
Посетите наш выставочный дом в Озерках
Наш специалист поможет подобрать проект и детально обсудить все тонкости процесса строительства.




















