Дом из газобетона в деревне Яльгелево
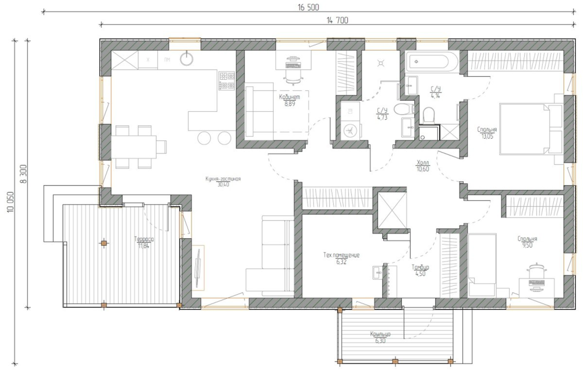
Планировка
Характеристики проекта
Дом построен по проекту:
Описание
Этот дом уже готов к заселению и подходит под сельскую ипотеку 3% годовых.
Находится в 45 - ти минутах от центра Санкт - Петербурга.
Общая площадь дома 110 м²
В доме 3 спальни (одна из них мастер-спальня) и два сан. узла.
Локация и инфраструктура:
— Дом располагается в деревне Яльгелево - это не коттеджный посёлок, здесь нет ежемесячных взносов;
— Магазины и школа в 10-ти минутах ходьбы от дома;
— До остановки общественного транспорта 10-ть минут пешком;
— До центра Красного села - 5 минут на авто;
— До центра Санкт - Петербурга 45 минут.
Технические характеристики:
Фундамент:
– Подушка песчаная 300-400мм – Подушка из щебня 100мм. Щебень фракции 20-40мм. Трамбование.
– Монолитная плита 300мм. Бетон марки Б25, арматура рифленая 12мм класс 3, двойное армирование.
Стены:
– Настил отсечной гидроизоляции Линокром
– Наружные стены толщиной 300мм
– Армопояс 300мм
– Перемычки над проемами 300мм
– Внутренние стены толщиной 250мм, плотность D500. – Укладка арматуры в монолитный пояс в 2 ряда
– Армирование кладки арматурой в 2 нити в каждый 3-й ряд
– Перегородки толщиной 150мм
Кровля:
– Стропильная система: установка стропил или стропильных ферм
– Мембрана Fakro N35 или аналог: двухсторонняя гидро- и ветроизоляция
– Обрешётка: доска 25/28×100 мм, монтаж с шагом под металлочерепицу
– Металлочерепица Ламонтера Norman толщиной 0,5 мм с доборными элементами, коньками, планками и саморезами
– Установка лобовой доски и подшивка свесов (строганая доска 20×95 мм)
– Вентвыходы 110 мм и 125 мм
Теплый контур:
– Утепление Пеноплекс Фундамент 50мм в 2 слоя
– Арматурная сетка 100х100мм d3,5-3,8 мм
– Пленка техническая 150 мм – Цементно-песчаная стяжка – слой до 8 см. Поролоновая прокладка 10мм. Песок морской фракционированный (без содержания глинистых примесей) "портланд" цемент марки-400
– Подготовка к утеплению чердачного перекрытия (или крыши), утепление Эковата 250мм – Пароизоляция, ветрозащита – Комплект окон Rehau Grazio, белый цвет снаружи и внутри (предварительный расчёт)
– Входная дверь: металлическая утеплённый вариант с замком
Внешняя отделка:
– Установка и герметизация отлива по периметру дома – Утеплитель Rockwool Фасад Баттс 50мм
– Нанесение черновой штукатурки по сетке. Сетка стеклотканевая фасадная, ячейка 5х5 мм
– Финишная штукатурка Ceresit CT64
Внутренняя отделка:
Стены: сан. узел - керамогранитная плитка, комнаты - обои под покраску. Пол: в коридорах и кухне-гостиной плитка, в комнатах ламинат. Система теплого пола.
Натяжной потолок во всех комнатах.
Установлены радиаторы в комнатах.
Вся инженерия, газовый котел, бойлер косвенного нагрева, инженерная разводка.
Электрощитовая, выключатели, розетки.
В обоих сан. узлах установлен туалет.
Иженерия:
– Котельная на газовом или электрическом оборудовании
– Монтажные работы по радиаторному отоплению – Монтаж подведения воды к каждой точке
– Сантехнические работы по водоотведению
– Электрика скрытая в штробе
– Станция биологической очистки «Биопурит»
– Монтажные работы по вентиляции
– Разработка схемы расположения электроприборов
для строительства!
Наш специалист поможет подобрать проект и детально обсудить все тонкости процесса строительства.





















