Одноэтажный дом из бруса ДБ-71
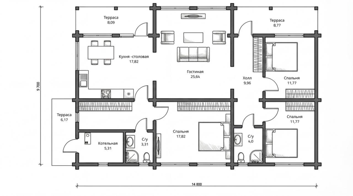
Планировка
Характеристики проекта
О технологии
100% натуральный, брус камерной сушки от компании Белый Журавль

Массив дерева без трещин
Рекордный показатель
Размеры и тип бруса
Стандартные - 140х140мм, 140х190мм.
Спецбрус (нестандартных размеров) - 140х210мм, 140х230мм.
Домокомплекты из спец. бруса изготавливаем из одной породы древесины - ели. Это дает возможность максимально предугадать поведение бруса при усадке в готовой конструкции. Меньше сучки - меньше вероятность коробления (кручения)!. Ель менее подвержена заражению деревоокрашивающим грибом (образование посинений на древесине). Использование одной породы дерева дает получить еще и эстетический результат - брус будет одного цвета и оттенка. Наш завод предоставляет выбор породы дерева из которого изготовлен домокомплект.
Эстетически совершенный брус
За счет минимального количества трещин и использования однотипной древесины, только профессионал сможет отличить дом из клееного бруса и бруса камерной сушки производимым нашим заводом.
Эстетически совершенный брус высочайшего качества. Построенные из нашего бруса дома не нуждаются в дополнительной отделке.
Какие вопросы чаще всего задают о доме из бруса?
Какой порядок оплаты строительства дома?
В случае строительства дома по ипотеке - 20,1% - это первоначальный взнос. Остальное - это ипотека. Всю сумму банк резервирует на эскроу - счете. По завершению строительства, подписанию акта выполненных работ, регистрации дома, банк раскрывает эскроу счёт в пользу Подрядчика.
Если вы оплачиваете строительство дома за наличный расчёт, то действует поэтапная оплата:
- Первый платёж — 30% от суммы договора при его подписании. Это подтверждение намерений и резервирование материалов.
- Второй платёж — 50% после заезда строительной бригады и поставки первой партии материалов на объект.
- Третий платёж — 15% после завершения основных строительных работ — возведения стен под крышу.
- Заключительный платёж — 5% после подписания акта выполненных работ и сдачи объекта заказчику.
Какой срок строительства дома из сухого бруса?
Средние сроки строительства дома из бруса от 3 до 10 месяцев.
Точный срок строительства зависит от размеров дома, типа фундамента, комплектации/стадии готовности, сезонности. К примеру, чтобы построить дом из бруса площадью до 150 м² на свайном фундаменте потребуется не меньше 6 - 8 месяцев. Из которых:
- 1. Свайно-винтовой фундамент: 1-2 дня
- 2. Сруб и крыша : 1, 5 месяца
- 3. Покраска фасада: 3 недели
- 4. Окна, двери - теплый контур: 2-3 недели
- 5. Черновая инженерия (магистрали электрики, водоснабжения) = 3-4 недели
- 6. Чистовая отделка стен и потолков внутри (деревом): 3-4 недели
- 7. Шлифовка, покраска брусовых стен: 2 месяца
Итого срок строительства дома «Под ключ» приблизительно 6 месяцев технологические паузы = 7 мес
Есть ли у вас гарантия на построенный дом?
Да, у нас есть гарантия на полностью построенный дом - это 5 лет с момента подписания акта приемки выполненных работ
Из каких этапов строительства состоит дом из сухого бруса?
-
Первый этап
- ● Подготовка участка;
- ● геодезическая съёмка;
- ● планировка участка;
- ● обеспечение электричеством и водой;
- ● разметка под дом;
- ● при необходимости расчистка участка.
-
Второй этап
- ● Фундамент;
- ● плита/сваи;
- ● гидроизоляция;
- ● армирование;
- ● опалубка;
- ● заливка бетона.
-
Третий этап
- ● Стены дома
- ● возведение внутренних и наружных стен.
-
Четвертый этап
- ● Кровля;
- ● стропильная система;
- ● влаго-ветрозащита;
- ● утепление крыши;
- ● кровельное покрытие.
-
Пятый этап
- ● Установка окон и дверей.
-
Шестой этап
- ● Инженерные коммуникации;
- ● электрика;
- ● водопровод;
- ● канализация;
- ● отопление;
- ● вентиляция.
-
Седьмой этап
- ● Внутренняя отделка.
-
Восьмой этап
- ● Фасад и утепление.
Есть ли у вас уже готовые проекты из сухого бруса для строительства?
Да, у нас есть типовые проекты домов из сухого бруса — одноэтажные и двухэтажные.
Любой проект можно доработать под ваш участок и требования.
Можно ли внести изменения в планировку дома во время строительства?
Изменения в планировке возможны, если не затрагивают несущие конструкции.
Незначительные правки, например перенос дверного проёма, допустимы.
Крупные изменения во время строительства увеличивают стоимость и сроки.
Аккредитованы ли вы в банках?
Да, мы аккредитованы в 4-х банках: РоссельхозБанк, ВТБ, СберБанк (Домклик), АльфаБанк.
Работаете ли вы с эскроу счетом?
Да, мы активно работаем с Эскроу счётом.
Могу ли я обойтись без проектирования дома?
Без проекта результат и бюджет будут непредсказуемыми.
Проект дома позволяет заранее увидеть будущий дом, продумать отделку и расстановку мебели.
Проект дома - это зафиксированные на бумаге договоренности между вами и застройщиком, какой будет дом, габариты, высоты, размеры окон, материалы и т. д.
Как я могу контролировать процесс строительства моего дома?
Посещение строительной площадки возможно только по предварительному согласованию с нашей компанией — это важно для вашей безопасности, так как на объекте ведутся работы.
Наш прораб всегда на связи: он контролирует процесс и информирует о ходе строительства.
Для вашего удобства создаётся отдельный Telegram-чат, куда прораб отправляет фотографии всех этапов — вы видите, как продвигается стройка в режиме реального времени.
Можно ли строить дом из бруса в зимний период?
Да, строительство дома зимой возможно.
Современные материалы и технологии позволяют вести большинство работ круглогодично. Мы учитываем особенности сезон, но сроки строительства могут увеличиться.
Сколько стоит дом из сухого бруса под ключ?
Стоимость дома зависит от целей строительства и выбранного уровня комфорта.
Также, на стоимость дома влияет: площадь, чем она больше, тем выше общая стоимость.
Уровень отделки и инженерных систем: «коробка» (фундамент стены крыша) стоит существенно дешевле, чем дом с полной чистовой отделкой, отоплением, электрикой, коммуникациями.
Есть ли у нас внутренний тех надзор?
Да, внутренний технадзор есть. Контроль качества осуществляют бригадир, прораб и директор строительного отдела — они отвечают за соблюдение технологий на всех этапах строительства.
Можно посмотреть ваши готовые дома вживую?
Да, вы можете увидеть наши дома лично.
Наш офис находится по адресу: Выборгское шоссе, д. 212, участок 25 — «Выставка коттеджей в Озерках».
Это построенный нами дом в комбинированной технологии — газобетон и брус.
Он наглядно показывает, как сочетаются два материала в одном проекте: внешний вид, качество сборки и атмосфера внутри.
Просмотр строящихся объектов
По предварительному согласованию мы организуем выезд на действующие стройки.
Во время визита вы сможете увидеть:
- — этапы возведения фундамента, стен и перекрытий;
- — работу нашей бригады;
- — качество монтажа и соблюдение технологий.
Это даёт полное и честное представление о том, как мы строим дома из газобетона — от фундамента до отделки.
Какой фундамент для дома из сухого бруса выбрать?
- Плитный фундамент (монолитная плита) — самый надёжный вариант. Подходит для домов из бруса. Такой фундамент компенсирует подвижки грунта.
- Ленточный фундамент — подходит для участков, где есть уклон и перепады грунта. Обеспечивает прочное основание, но требует больше времени и затрат на устройство.
- Сваи металлические и железобетонные — быстрый и экономичный для домов из бруса. Монтируется в любое время года, идеален для сложных участков (уклон, слабые грунты).
Что нужно для подготовки участка к строительству?
Перед началом строительства участок нужно привести в состояние, при котором техника и мастера смогут безопасно работать. Подготовка участка — важный этап, от которого зависит скорость строительства.
-
1. Очистка территории
- удаление кустарников и деревьев (большие деревья убираются только в месте застройки и строительного городка);
- выравнивание поверхности;
- Если участок заросший или неровный, работы занимают больше времени.
-
2. Организация подъездных путей
Нужен свободный доступ для техники: самосвалы, манипуляторы, бетонные миксеры. Без нормального подъезда тяжелая техника не заездет на участок, часть материалов можно разгрузить вручную но это дополнительные расходы и увеличение срока строительства.
-
3. Подведение временных коммуникаций
Для строительства нужны:
- ● электричество (щиток, кабель);
- ● вода для строительных работ;
- ● место для размещения бытовки.
-
4. Установка строительной бытовки
На участке размещаются:
- ● бытовка для хранения инструмента;
- ● для отдыха строительной бригады.
-
5. Проверка уровня грунтовых вод и состояния почвы
Важно оценить:
- ● глубину промерзания,
- ● тип грунта,
- ● уровень грунтовых вод
-
6. Разметка границ и будущего дома
Проводится геодезическая разметка:
- ● вынос основных осей,
- ● определение уровня нулевой точки,
- ● фиксация расположения дома на участке.
Это исключает ошибки при заливке фундамента.
Как лучше отапливать дом из сухого бруса?
Тепло можно обеспечить в любом доме — вопрос лишь в том, сколько энергии на это потребуется.
Для круглогодичного проживания
Самой экономичной в эксплуатации считается система на паровых радиаторах или водяных тёплых полах, работающих от газового или электрического котла.
Да, такая система требует более сложного монтажа и дорогих материалов, но она заметно снижает будущие расходы на отопление. Поэтому мы рекомендуем эту систему именно для домов постоянного проживания.
Для дачных домов и сезонного использования
Если дом используется только летом или время от времени, устанавливать полноценную котельную обычно нецелесообразно — вложения окупаются очень долго.
Оптимальный вариант — точечное электрическое отопление: современные конвекторы или другие электрические нагреватели. Они стоят значительно дешевле, их легко объединить в сеть и управлять удалённо. Единственный минус — более высокая стоимость потребляемой энергии, но в сезонном доме это не критично.
В каком регионе вы строите?
Мы строим дома под ключ в Санкт-Петербурге и Ленинградской области: Гатчина, Всеволожск, Выборг, Сосновый Бор, Сертолово, Тихвин, Кириши, Кудрово, Кингисепп, Волхо, Тосно, Луга, Сланцы, Кировск, Отрадное, Никольское, Коммуна, Пикалёво, Лодейное Поле, Приозерск, Подпорожье, Светогорск, Бокситогорск, Шлиссельбург, Сясьстрой, Волосово, Ивангород, Новая Ладога, Каменногорск, Приморск, Любань, Высоцк, Рощино, Янино-1, Ульяновка, Сиверский, Вырица, имени Свердлова, Кузьмоловский, имени Морозова, Мга, Дубровка, Советский, Форносово, Новоселье, Приладожский, Токсово, Красный Бор, Виллози, Назия, Лебяжье, Синявино, Кузнечное, Фёдоровское, Будогощь, Рахья, Дружная Горка, Павлово, Ефимовский, Лесогорский, Рябово, Тайцы, Большая Ижора, Толмачёво, Никольский, Важины, Вознесенье, Свирьстрой.
Подробнее, о построенных домах, вы можете ознакомиться на странице карте объектов.
Наш специалист поможет подобрать проект и детально обсудить все тонкости процесса строительства.





















