Шале из бруса и газобетона (Проект КД-06)
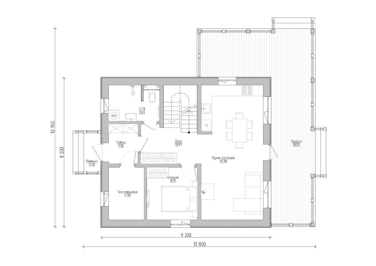
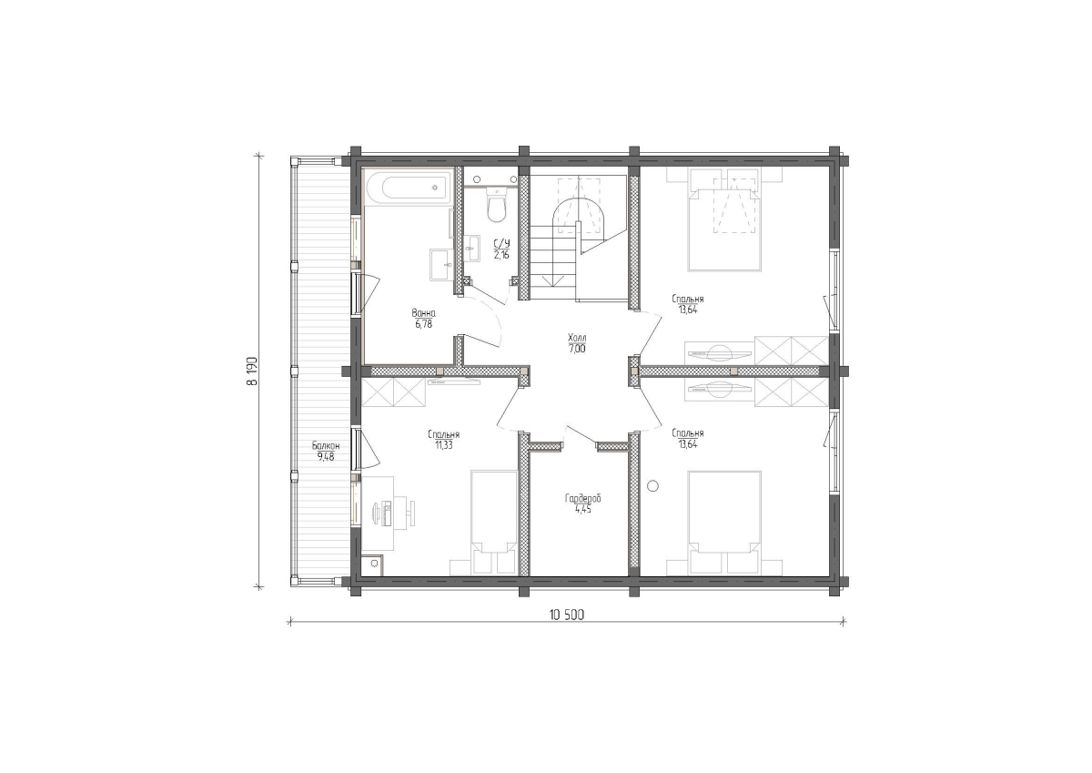
Планировка
Характеристики проекта
О технологии
100% натуральный, брус камерной сушки от компании Белый Журавль

Массив дерева без трещин
Рекордный показатель
Размеры и тип бруса
Стандартные - 140х140мм, 140х190мм.
Спецбрус (нестандартных размеров) - 140х210мм, 140х230мм.
Домокомплекты из спец. бруса изготавливаем из одной породы древесины - ели. Это дает возможность максимально предугадать поведение бруса при усадке в готовой конструкции. Меньше сучки - меньше вероятность коробления (кручения)!. Ель менее подвержена заражению деревоокрашивающим грибом (образование посинений на древесине). Использование одной породы дерева дает получить еще и эстетический результат - брус будет одного цвета и оттенка. Наш завод предоставляет выбор породы дерева из которого изготовлен домокомплект.
Эстетически совершенный брус
За счет минимального количества трещин и использования однотипной древесины, только профессионал сможет отличить дом из клееного бруса и бруса камерной сушки производимым нашим заводом.
Эстетически совершенный брус высочайшего качества. Построенные из нашего бруса дома не нуждаются в дополнительной отделке.
Объекты по данному проекту:
Описание
Проект комбинированного дома «КД-06» в стиле шале — это идеальное решение для комфортной загородной жизни. Площадь 168 кв. м. позволяет разместить все необходимые зоны для большой семьи. Дом выполнен из современных материалов, что обеспечивает надежность, теплоизоляцию и долговечность конструкции.
Планировка включает четыре спальни, две из которых расположены на мансардном этаже, а одна — на первом, что особенно удобно для пожилых членов семьи или гостей. Просторная кухня-гостиная (25 кв. м.) станет центром семейных встреч, а большая терраса (38 кв. м.) — отличным местом для отдыха на свежем воздухе. Также предусмотрены два санузла, техническое помещение и прихожая.
Этот проект подойдет для тех, кто ценит сочетание уюта, функциональности и природного стиля. Отличный вариант как для постоянного проживания, так и для загородного дома, где можно проводить время с семьей и друзьями вдали от городской суеты.
для строительства!
Наш специалист поможет подобрать проект и детально обсудить все тонкости процесса строительства.




















