Одноэтажный финский дом из бруса 12.8х12.4 ДБ-8
Планировка
Характеристики проекта
О технологии
100% натуральный, брус камерной сушки от компании Белый Журавль

Массив дерева без трещин
Рекордный показатель
Размеры и тип бруса
Стандартные - 140х140мм, 140х190мм.
Спецбрус (нестандартных размеров) - 140х210мм, 140х230мм.
Домокомплекты из спец. бруса изготавливаем из одной породы древесины - ели. Это дает возможность максимально предугадать поведение бруса при усадке в готовой конструкции. Меньше сучки - меньше вероятность коробления (кручения)!. Ель менее подвержена заражению деревоокрашивающим грибом (образование посинений на древесине). Использование одной породы дерева дает получить еще и эстетический результат - брус будет одного цвета и оттенка. Наш завод предоставляет выбор породы дерева из которого изготовлен домокомплект.
Эстетически совершенный брус
За счет минимального количества трещин и использования однотипной древесины, только профессионал сможет отличить дом из клееного бруса и бруса камерной сушки производимым нашим заводом.
Эстетически совершенный брус высочайшего качества. Построенные из нашего бруса дома не нуждаются в дополнительной отделке.
Описание
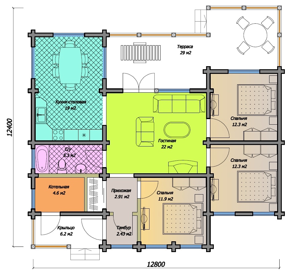
Проект одноэтажного дома из бруса ДБ-8 площадью 128 кв. м. сочетает в себе комфорт, практичность и стильную архитектуру. Благодаря светлым фасадам и просторной террасе (29 кв. м.) дом выглядит современно и гармонично вписывается в природный ландшафт.
Планировка включает три уютные спальни, гостиную (22 кв. м.) с выходом на террасу, отдельную кухню-столовую (19 кв. м.), санузел, котельную и удобную прихожую. Высота потолков 2,6 м делает помещения просторными и светлыми. Терраса станет отличным местом для отдыха и встреч с друзьями.
Этот проект подойдет для семей, которые ценят уют загородной жизни. Натуральный брус обеспечивает комфортный микроклимат в доме, а грамотная планировка делает его удобным как для постоянного проживания, так и для дачного отдыха.
для строительства!
Наш специалист поможет подобрать проект и детально обсудить все тонкости процесса строительства.


















