Каркасный дом 8х8 (Проект К-8)
Планировка
Характеристики проекта
Описание
Каркасный дом с мансардным этажом К-8 идеально подойдет для семьи, ценящей комфорт и функциональность. Его светлый фасад с контрастными элементами придает строению классический, но одновременно современный вид. Большие окна обеспечивают хорошую инсоляцию, а балкон и просторная терраса позволяют наслаждаться природой, не выходя за пределы дома.
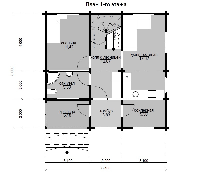
На первом этаже расположен просторный холл с лестницей, ведущей на мансарду, а также уютная кухня-гостиная площадью 17,3 м². Здесь достаточно места для отдыха, семейных ужинов и приема гостей. В дополнение к гостиной этаж включает отдельную спальню, санузел и котельную, что делает проживание особенно удобным. Тамбур и крытое крыльцо защищают от холода и осадков, создавая комфортный вход в дом.
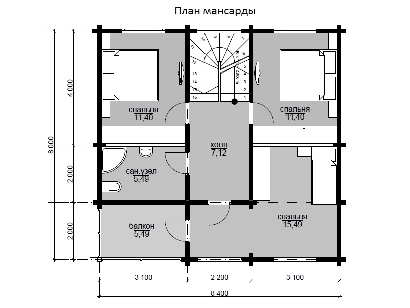
На мансардном этаже размещены три спальни разного метража, позволяя каждому члену семьи выбрать свою идеальную комнату. В центре расположена небольшая, но удобная зона холла, объединяющая помещения. Отдельный санузел обеспечивает дополнительное удобство, а выход на балкон делает этот этаж особенно привлекательным для утреннего кофе с видом на окрестности.
Сочетание практичной планировки, современных материалов и теплой деревянной эстетики делает этот дом отличным выбором для круглогодичного проживания или загородного отдыха.
для строительства!
Наш специалист поможет подобрать проект и детально обсудить все тонкости процесса строительства.


















