Брусовой дом в деревне Кобылье Городище
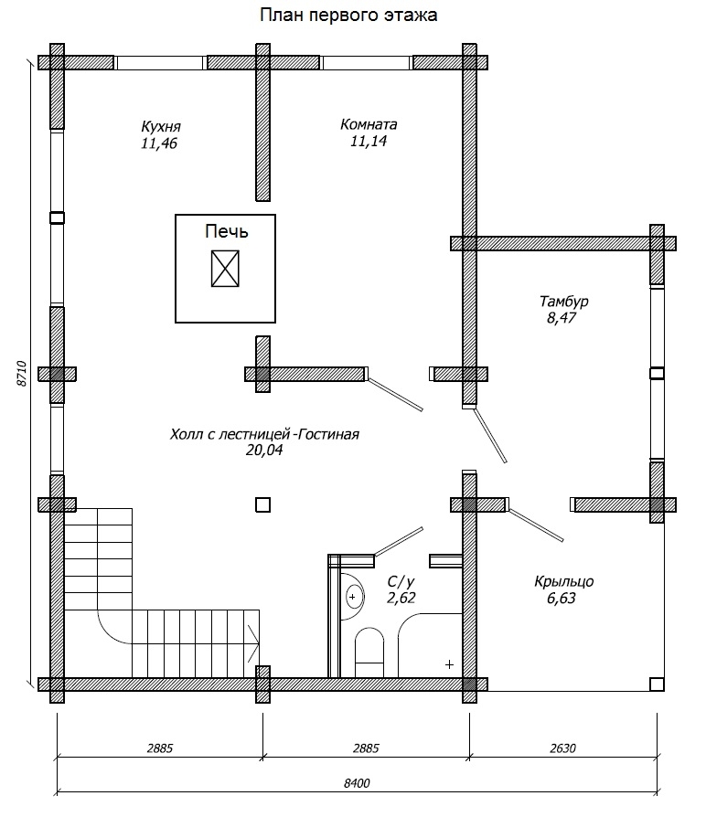
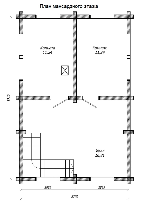
Планировка
Характеристики проекта
Кол-во с/у
1
Общая площадь (с учётом террасы и крыльца при наличии)
66 кв. м.
Площадь тёплого контура (без учёта террасы и крыльца)
100 кв. м.
Этажность
1,5 этажа
Общее кол-во спален
4
Общее кол-во сан. узлов
1
Подписывайтесь на наши каналы
Брусовой дом в деревне Кобылье Городище
Площадь66 м²
Этажность1,5
Спален4
Цена: по запросу
В избранное
Посетите наш выставочный дом в Озерках
Наш специалист поможет подобрать проект и детально обсудить все тонкости процесса строительства.

















