Дом в г.Чехов
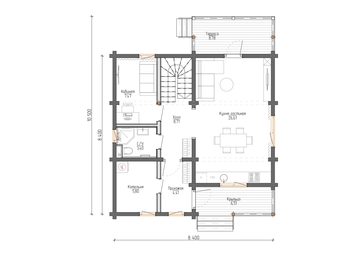
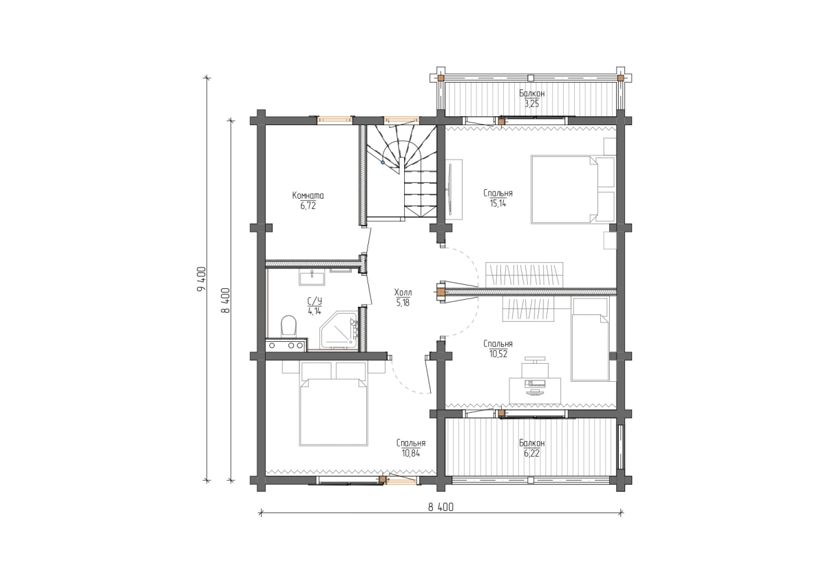
Планировка
Характеристики проекта
Кол-во с/у
2
Особенности
с террасой, с балконом
По материалу
Дома из бруса
Общая площадь
134 кв. м.
Площадь помещений
67 кв. м.
Этажность
2 этажа
Высота потолков 1-го этажа
2,6
Общее кол-во спален
3
Балкон
Да
Терраса
Да
Общее кол-во сан. узлов
2
Подписывайтесь на наш телеграм-канал
Объекты по данному проекту:
Дом в г.Чехов
Московская область
Площадь134 м²
Этажность2
Спален3
Цена: по запросу
В избранное
Предлагаем максимально выгодные условия
для строительства!
для строительства!
Получите льготное предложение на строительство своего дома под 5,7% годовых.
Доступна сельская ипотека под 3% годовых.Узнайте больше о возможностях строительства по ставке ниже инфляции.Поможем оформить и бесплатно проконсультируем.
5,7%
Льготная программа для семей с детьми от Сбербанка
3,0%
Льготная программа по сельской ипотеке от россельхоз банка
Посетите наш выставочный дом в Озерках
Наш специалист поможет подобрать проект и детально обсудить все тонкости процесса строительства.














