Брусовой дом в Цвелодубово
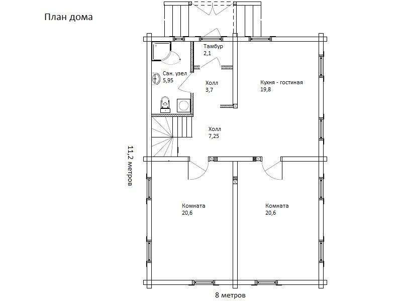
Планировка
Характеристики проекта
Кол-во с/у
1
По материалу
Дома из бруса
Общая площадь
180 кв. м.
Площадь помещений
80 кв. м.
Этажность
1,5 этажа
Высота потолков 1-го этажа
2,60 м.
Высота потолков мансарды
2,60 м.
Спальня на 1м этаже
Да
Общее кол-во спален
2
Высота подстенков 1,5го этажа
1,50 м.
Общее кол-во сан. узлов
1
Подписывайтесь на наш телеграм-канал
Брусовой дом в Цвелодубово
Площадь180 м²
Этажность1,5
Спален2
Цена: по запросу
В избранное
Предлагаем максимально выгодные условия
для строительства!
для строительства!
Получите льготное предложение на строительство своего дома под 5,7% годовых.
Доступна сельская ипотека под 3% годовых.Узнайте больше о возможностях строительства по ставке ниже инфляции.Поможем оформить и бесплатно проконсультируем.
5,7%
Льготная программа для семей с детьми от Сбербанка
3,0%
Льготная программа по сельской ипотеке от россельхоз банка
Посетите наш выставочный дом в Озерках
Наш специалист поможет подобрать проект и детально обсудить все тонкости процесса строительства.












