Дом из бруса 8х8 ДБ-181
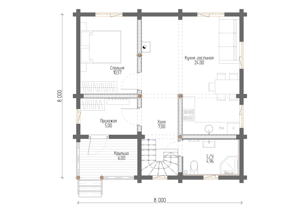
Планировка
Характеристики проекта
О технологии
100% натуральный, брус камерной сушки от компании Белый Журавль

Массив дерева без трещин
Рекордный показатель
Размеры и тип бруса
Стандартные - 140х140мм, 140х190мм.
Спецбрус (нестандартных размеров) - 140х210мм, 140х230мм.
Домокомплекты из спец. бруса изготавливаем из одной породы древесины - ели. Это дает возможность максимально предугадать поведение бруса при усадке в готовой конструкции. Меньше сучки - меньше вероятность коробления (кручения)!. Ель менее подвержена заражению деревоокрашивающим грибом (образование посинений на древесине). Использование одной породы дерева дает получить еще и эстетический результат - брус будет одного цвета и оттенка. Наш завод предоставляет выбор породы дерева из которого изготовлен домокомплект.
Эстетически совершенный брус
За счет минимального количества трещин и использования однотипной древесины, только профессионал сможет отличить дом из клееного бруса и бруса камерной сушки производимым нашим заводом.
Эстетически совершенный брус высочайшего качества. Построенные из нашего бруса дома не нуждаются в дополнительной отделке.
Описание
Дом ДБ-181 выполнен из бруса и представляет собой компактное, но функциональное жилье с мансардным этажом. Общая площадь здания составляет 94 кв. м, что делает его идеальным для небольшой семьи или загородного проживания.
На первом этаже расположены просторная кухня-гостиная, удобная спальня, прихожая, холл и санузел. Также предусмотрено крыльцо площадью 6 кв. м, создающее уютную зону перед входом.
Мансардный этаж предлагает просторное помещение, которое можно адаптировать под жилую комнату, кабинет или дополнительную спальню. По бокам от мансарды находятся два чердачных помещения, которые можно использовать для хранения вещей.
Этот дом сочетает в себе традиционный стиль и современные удобства, обеспечивая тепло, комфорт и функциональность в компактных габаритах.
для строительства!
Наш специалист поможет подобрать проект и детально обсудить все тонкости процесса строительства.




















