Дом из бруса 8х9 ДБ-113
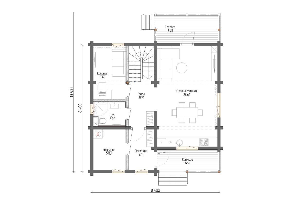
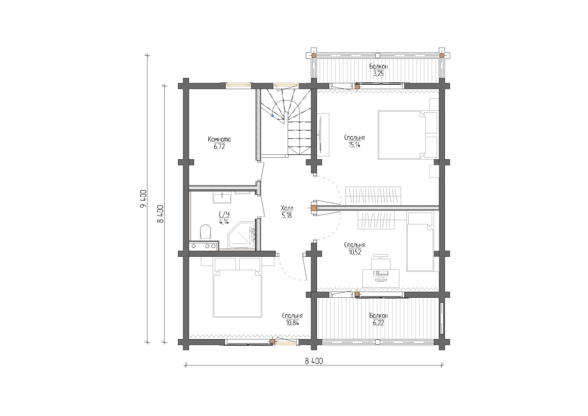
Планировка
Характеристики проекта
О технологии
100% натуральный, брус камерной сушки от компании Белый Журавль

Массив дерева без трещин
Рекордный показатель
Размеры и тип бруса
Стандартные - 140х140мм, 140х190мм.
Спецбрус (нестандартных размеров) - 140х210мм, 140х230мм.
Домокомплекты из спец. бруса изготавливаем из одной породы древесины - ели. Это дает возможность максимально предугадать поведение бруса при усадке в готовой конструкции. Меньше сучки - меньше вероятность коробления (кручения)!. Ель менее подвержена заражению деревоокрашивающим грибом (образование посинений на древесине). Использование одной породы дерева дает получить еще и эстетический результат - брус будет одного цвета и оттенка. Наш завод предоставляет выбор породы дерева из которого изготовлен домокомплект.
Эстетически совершенный брус
За счет минимального количества трещин и использования однотипной древесины, только профессионал сможет отличить дом из клееного бруса и бруса камерной сушки производимым нашим заводом.
Эстетически совершенный брус высочайшего качества. Построенные из нашего бруса дома не нуждаются в дополнительной отделке.
Объекты по данному проекту:
Описание
Проект дома из бруса ДБ-113 — воплощение уюта, природной гармонии и современного загородного комфорта. Он идеально подойдет как для постоянного проживания, так и для отдыха на природе. Внешний облик дома очаровывает своей классической эстетикой: большие панорамные окна наполняют пространство светом, а два уютных балкона создают прекрасную возможность наслаждаться свежим воздухом и живописными видами.
Дом гармонично вписывается в природное окружение и создаёт атмосферу спокойствия и уединённости. Благодаря использованию качественного бруса, он не только выглядит красиво, но и обладает отличной теплоизоляцией, что делает его уютным в любое время года. Просторная терраса станет любимым местом для летнего отдыха, семейных барбекю и тёплых встреч с друзьями.
для строительства!
Наш специалист поможет подобрать проект и детально обсудить все тонкости процесса строительства.



















