Брусовой дом в Громово
Планировка
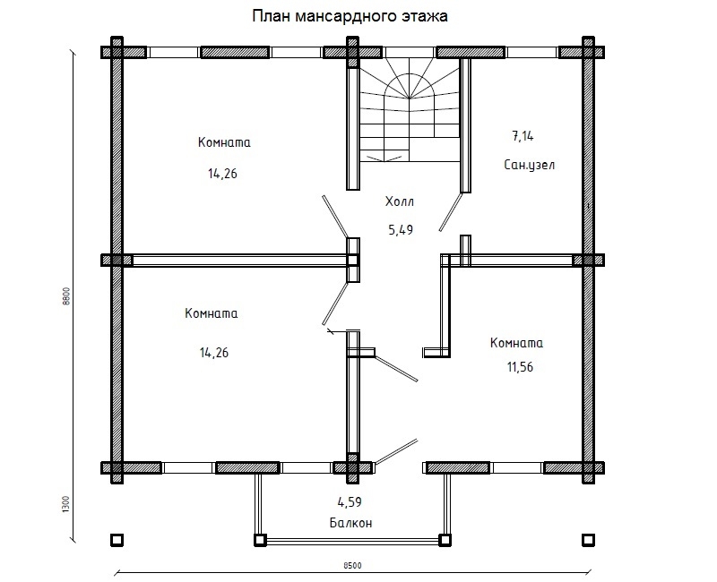
Характеристики проекта
Кол-во с/у
2
Общая площадь (с учётом террасы и крыльца при наличии)
150 кв. м.
Площадь тёплого контура (без учёта террасы и крыльца)
142 кв. м.
Этажность
1,5 этажа
Высота потолков 1-го этажа
2,60 м.
Высота потолков мансарды
2,60 м.
Спальня на 1м этаже
Да
Общее кол-во спален
4
Высота подстенков 1,5го этажа
1,50 м.
Балкон
Да
Терраса
Да
Общее кол-во сан. узлов
1
Подписывайтесь на наш телеграм-канал
Брусовой дом в Громово
Площадь150 м²
Этажность1,5
Спален4
Цена: по запросу
В избранное
Посетите наш выставочный дом в Озерках
Наш специалист поможет подобрать проект и детально обсудить все тонкости процесса строительства.



















