Брусовой дом в ДНП «Сосновские Озера» 2
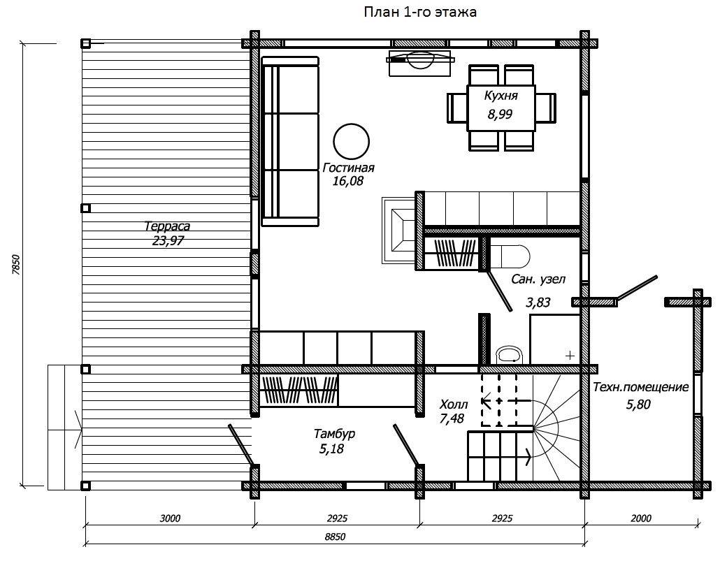
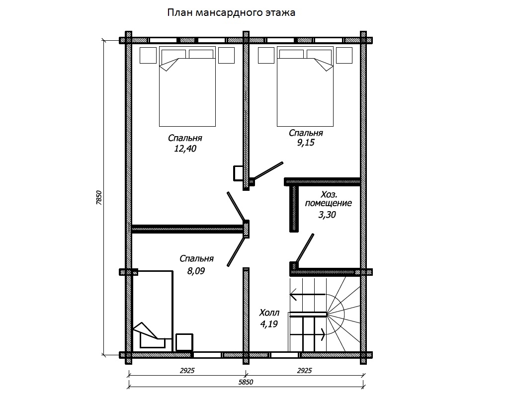
Планировка
Характеристики проекта
Кол-во с/у
1
Общая площадь
108 кв. м.
Площадь помещений
108 кв. м.
Этажность
1,5 этажа
Высота потолков 1-го этажа
2,60 м.
Высота потолков мансарды
2,60 м.
Общее кол-во спален
3
Высота подстенков 1,5го этажа
1,50 м.
Терраса
Да
Общее кол-во сан. узлов
1
Подписывайтесь на наш телеграм-канал
Брусовой дом в ДНП «Сосновские Озера» 2
Площадь108 м²
Этажность1,5
Спален3
Цена: по запросу
В избранное
Посетите наш выставочный дом в Озерках
Наш специалист поможет подобрать проект и детально обсудить все тонкости процесса строительства.




















