Строительство домов из газобетона
В современном малоэтажном строительстве все большую популярность приобретают дома из газобетона. Этот материал сочетает в себе прочность, энергоэффективность и доступную стоимость, благодаря чему активно используется при строительстве частных коттеджей и загородных домов. Строительство домов из газобетона отличается разнообразием архитектурных решений, удобными планировками и возможностью адаптации под индивидуальные потребности будущих владельцев.
Газобетон представляет собой легкий ячеистый бетон, который обладает хорошими теплоизоляционными свойствами и достаточно высокой прочностью. Благодаря этому материал подходит для строительства домов высотой до нескольких этажей. Наиболее востребованным считается газобетон плотности D400, который сочетает оптимальные теплоизоляционные характеристики и несущую способность для жилых зданий. Особенно востребованы дома из газобетона под ключ в СПб и в Ленинградской области, где важно учитывать климатические особенности региона. Кроме того, небольшой вес блоков позволяет снизить нагрузку на фундамент и уменьшить общую стоимость дома из газобетона.

Один из самых популярных вопросов от наших заказчиков: теплый ли дом из газобетона? Важным преимуществом домов из газобетона является высокая энергоэффективность. Стены из газобетонных блоков хорошо удерживают тепло, что позволяет сократить расходы на отопление в холодное время года. Также материал отличается экологичностью и паропроницаемостью, благодаря чему внутри дома формируется комфортный микроклимат. Именно поэтому многие выбирают строительство загородных домов из газобетона для постоянной жизни.
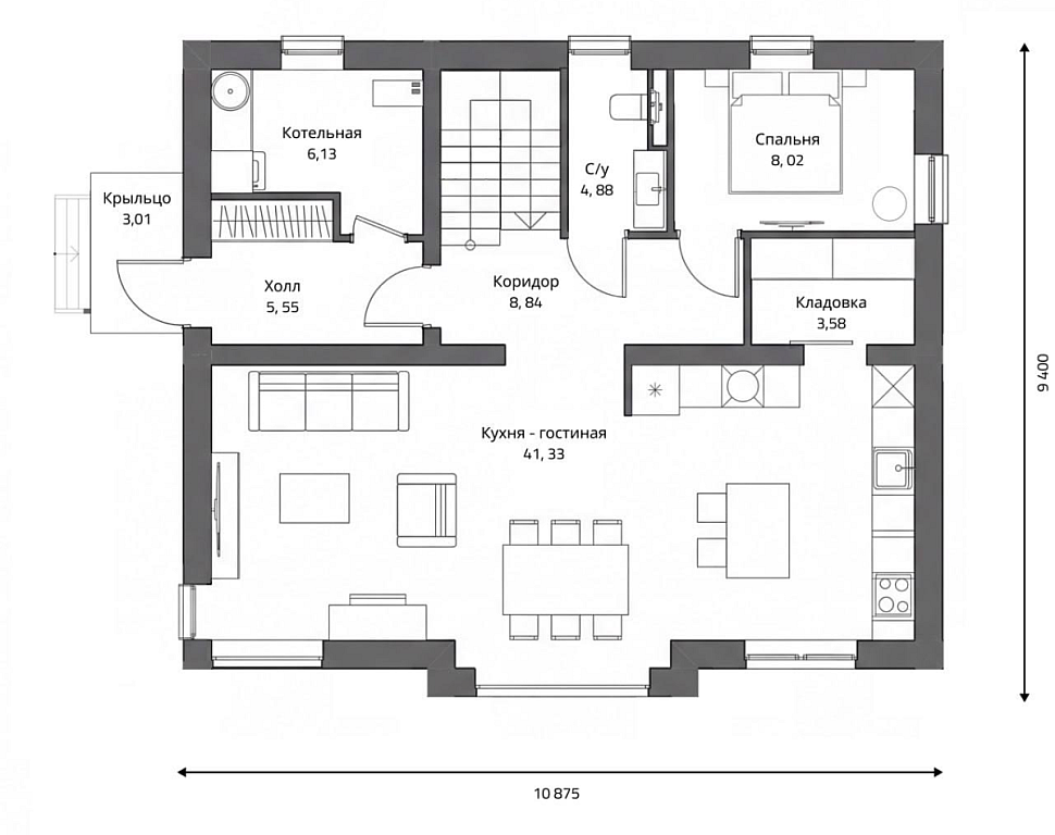
Проект «Брик»
Современные дома из газобетона ориентированы на удобство проживания и функциональность. В них часто предусматриваются просторные кухни-гостиные, несколько спален, большие окна и террасы. Например, проект «Брик» представляет собой современный загородный дом с продуманной планировкой и лаконичной архитектурой. В подобных проектах обычно используется сочетание газобетонных стен с декоративной отделкой фасада (штукатуркой и деревянными элементами). Такое решение делает внешний вид дома более выразительным и современным.
![]() |
![]() |
![]() |
![]() |
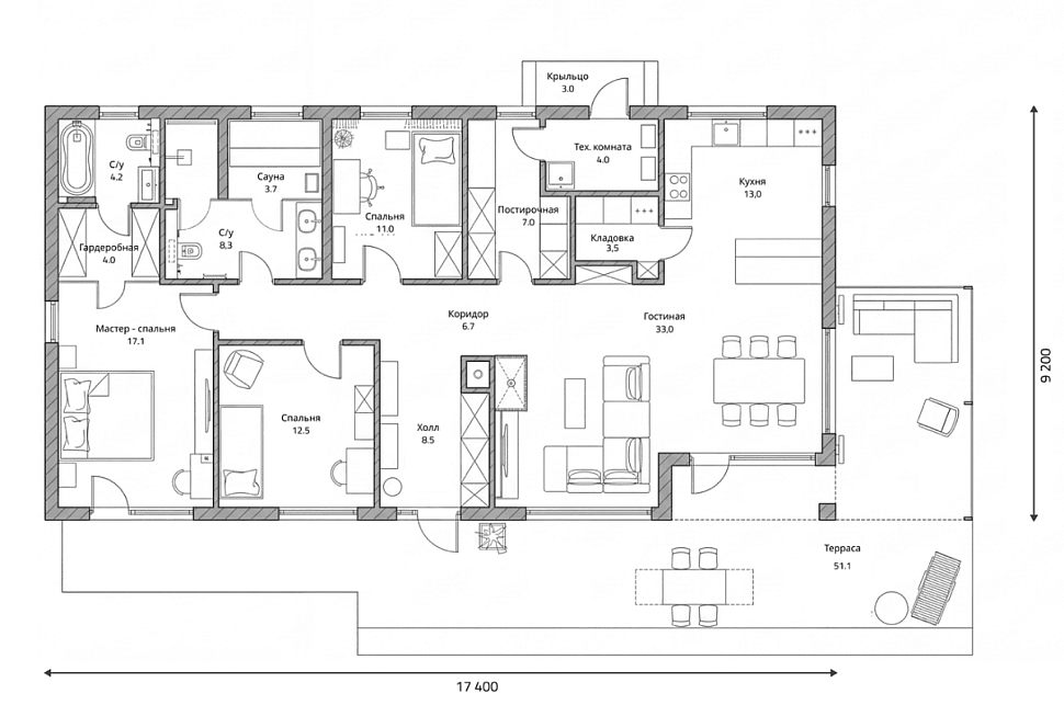
Проект «Мико-5»
Еще одним интересным примером является проект «Мико-5», который ориентирован на комфортное проживание семьи из 4х-5ти человек. Это стильный пример одноэтажного дома из газобетона под ключ, где предусмотрены несколько спален, удобная зона кухни-гостиной и функциональные хозяйственные помещения. Такой подход позволяет грамотно распределить пространство и создать удобную жилую среду для всех членов семьи.
![]() |
![]() |
![]() |
![]() |
Преимущество домов из газобетона
Современные технологии строительства также играют важную роль при возведении домов из газобетона. Например, кладка блоков часто выполняется на специальный тонкослойный клей благодаря чему толщина швов уменьшается до нескольких миллиметров. Что позволяет снизить теплопотери и повысить энергоэффективность здания. Это одна из технологий строительства дома из газобетона.

Кроме того, при строительстве применяется армирование кладки и устройство железобетонных перемычек, что обеспечивает надежность и долговечность конструкции.
Большое значение в современных проектах уделяется архитектурному дизайну. Сегодня дома из газобетона могут выполняться в самых разных стилях - от классических коттеджей до минималистичных современных домов с панорамными окнами. Использование различных вариантов фасадной отделки - штукатурки, декоративного кирпича, камня или дерева - позволяет создавать уникальный внешний вид здания.
Еще одним преимуществом типовых проектов является возможность их адаптации под конкретный участок и требования заказчика. Это особенно актуально для тех, кто планирует построить дом из газобетона под ключ. При необходимости можно изменить планировку, добавить гараж, террасу или дополнительные комнаты. Благодаря этому будущие владельцы получают дом, максимально соответствующий их образу жизни и потребностям.
Таким образом, проекты домов из газобетона являются одним из наиболее востребованных решений в современном индивидуальном строительстве. Они сочетают в себе экономичность, энергоэффективность и разнообразие архитектурных решений. Примеры проектов, таких как «Брик» и «Мико-5», демонстрируют, что современные дома из газобетона могут быть не только практичными, но и эстетически привлекательными. Именно поэтому данный материал продолжает активно использоваться при строительстве комфортных и долговечных частных домов.
В нашем каталоге вы можете посмотреть разные проекты из газобетона, которые мы можем
начать строить для вас уже в ближайшее время.









