Каркасный дом 12х12 (Проект К1-8)
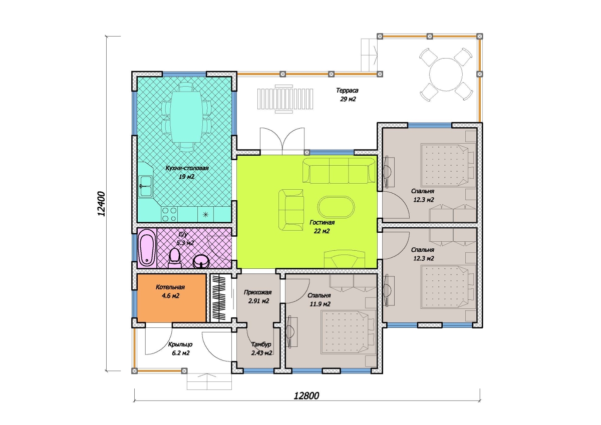
Планировка
Характеристики проекта
Описание
Проект К1-8 — воплощение спокойствия и комфорта. Просторный, одноэтажный каркасный дом площадью 128 кв. м. идеально подойдет для тех, кто хочет жить вдали от городской суеты, наслаждаясь природой и уютом собственного пространства.
Функциональная планировка включает три спальни, просторную гостиную (22 кв. м.), отдельную кухню-столовую (19 кв. м.), санузел и котельную. Здесь есть все для комфортной жизни. Из гостиной можно выйти на большую террасу (29 кв. м.), где уютно разместятся шезлонги или обеденная зона для теплых летних вечеров.
Этот дом создан для семейного уюта: открытые пространства плавно переходят одно в другое, а продуманная организация зон делает его удобным для всех членов семьи. Легкие фасады, деревянные элементы и большие окна добавляют ощущение свободы и тепла, делая этот дом идеальным местом для жизни и отдыха.
Наш специалист поможет подобрать проект и детально обсудить все тонкости процесса строительства.
















