Дом из бруса в Вырице
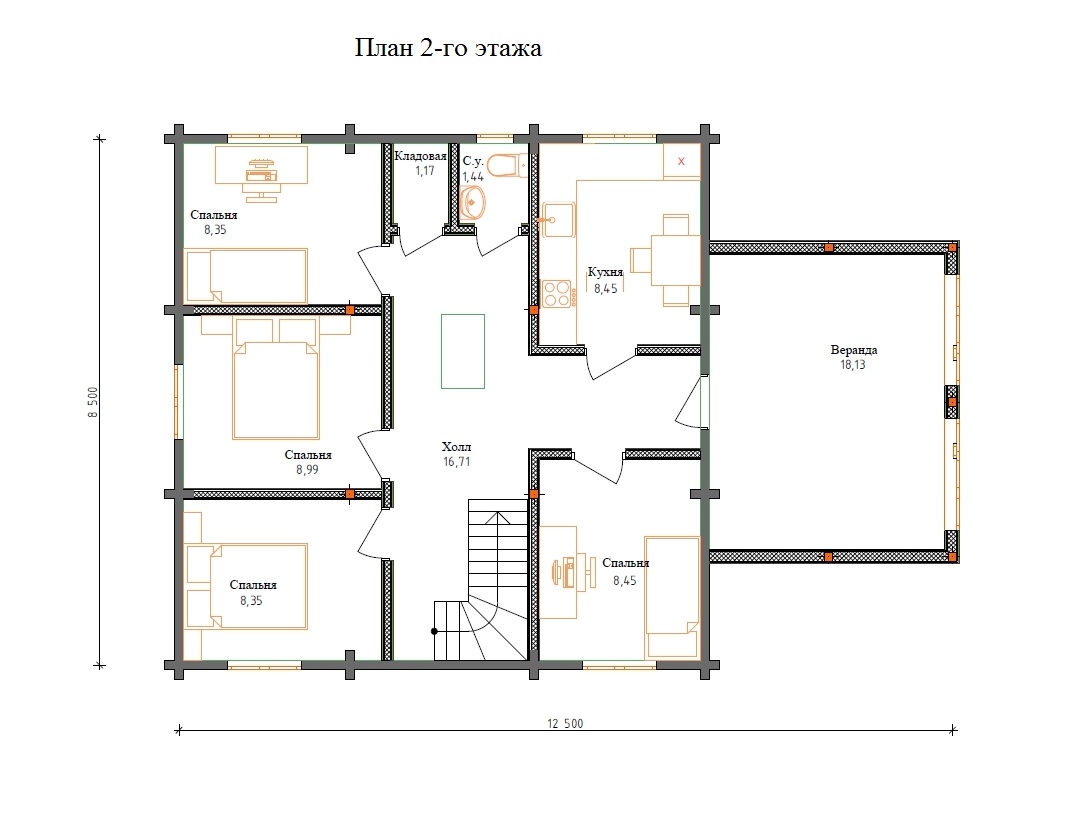
Планировка
Характеристики проекта
Кол-во с/у
2
Общая площадь (с учётом террасы и крыльца при наличии)
168 кв. м.
Площадь тёплого контура (без учёта террасы и крыльца)
168 кв. м.
Этажность
2 этажа
Высота потолков 1-го этажа
2,60 м.
Спальня на 1м этаже
Да
Общее кол-во спален
5
Высота потолков 2-го этажа
2,50 м.
Общее кол-во сан. узлов
2
Подписывайтесь на наши каналы
В избранное
Посетите наш выставочный дом в Озерках
Наш специалист поможет подобрать проект и детально обсудить все тонкости процесса строительства.
















