Брусовой дом в Захарьино, Новгородской области.
Характеристики проекта
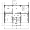
Общая площадь
92 кв. м.
Этажность
1 этаж
Высота потолков 1-го этажа
2,60 м.
Общее кол-во спален
2
Терраса
Да
Подписывайтесь на наш телеграм-канал
Брусовой дом в Захарьино, Новгородской области.
Площадь92 м²
Этажность1
Спален2
Цена: по запросу
В избранное
Предлагаем максимально выгодные условия
для строительства!
для строительства!
Получите льготное предложение на строительство своего дома под 5,7% годовых.
Доступна сельская ипотека под 3% годовых.Узнайте больше о возможностях строительства по ставке ниже инфляции.Поможем оформить и бесплатно проконсультируем.
5,7%
Льготная программа для семей с детьми от Сбербанка
3,0%
Льготная программа по сельской ипотеке от россельхоз банка
Посетите наш выставочный дом в Озерках
Наш специалист поможет подобрать проект и детально обсудить все тонкости процесса строительства.

















