Одноэтажный каркасный дом 10х18 Первомайское
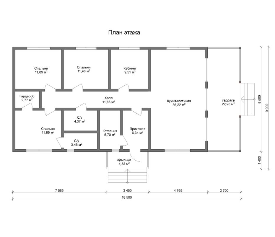
Планировка
Характеристики проекта
Кол-во с/у
2
Особенности
с террасой
По материалу
Каркасные дома
Общая площадь
162 кв. м.
Площадь помещений
143 кв. м.
Этажность
1 этаж
Высота потолков 1-го этажа
2.7 м
Общее кол-во спален
4
Терраса
Да
Общее кол-во сан. узлов
2
Подписывайтесь на наш телеграм-канал
Описание
Высота дома 5.83 м
Высота потолков 2.7 м
Архитектурный стиль: Скандинавский
Толщина наружных стен 150 мм
Тип фундамента Плитный
Материал перекрытий Деревянные
Основной материал фасадов Дерево
Материал кровли Металлочерепица
Одноэтажный каркасный дом 10х18 Первомайское
Площадь162 м²
Этажность1
Спален4
от 8 748 178 ₽
В избранное
Предлагаем максимально выгодные условия
для строительства!
для строительства!
Получите льготное предложение на строительство своего дома под 5,7% годовых.
Доступна сельская ипотека под 3% годовых.Узнайте больше о возможностях строительства по ставке ниже инфляции.Поможем оформить и бесплатно проконсультируем.
5,7%
Льготная программа для семей с детьми от Сбербанка
3,0%
Льготная программа по сельской ипотеке от россельхоз банка
Посетите наш выставочный дом в Озерках
Наш специалист поможет подобрать проект и детально обсудить все тонкости процесса строительства.



















